3602

Alapterület
69
m2
Telekterület
610
m2
Szobák száma
4
db
Típus
Nyaraló
Állapot
Átlagos
Parkolás
Kertben

Leírás
Hangulatos nyaraló szép kertben, átmenő forgalomtól mentes, nyugodt kis mellékutcában, rendezett lakóövezetben, a strandtól és a központtól gyalog is kényelmesen elérhető távolságban. 

A kétszobás nyaralóhoz néhány éve egy különbejáratos lakrészt építettek saját fürdőszobával, a szeparáció ideális megoldás két generáció számára, vagy ha vendégekkel közösen, mégis kellő privát térrel szeretnének nyaralni. Ehhez hozzájárul a két külön terasz, illetve a szeparált elő és a hátsó kert is. 

Helyiségek:
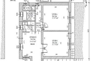
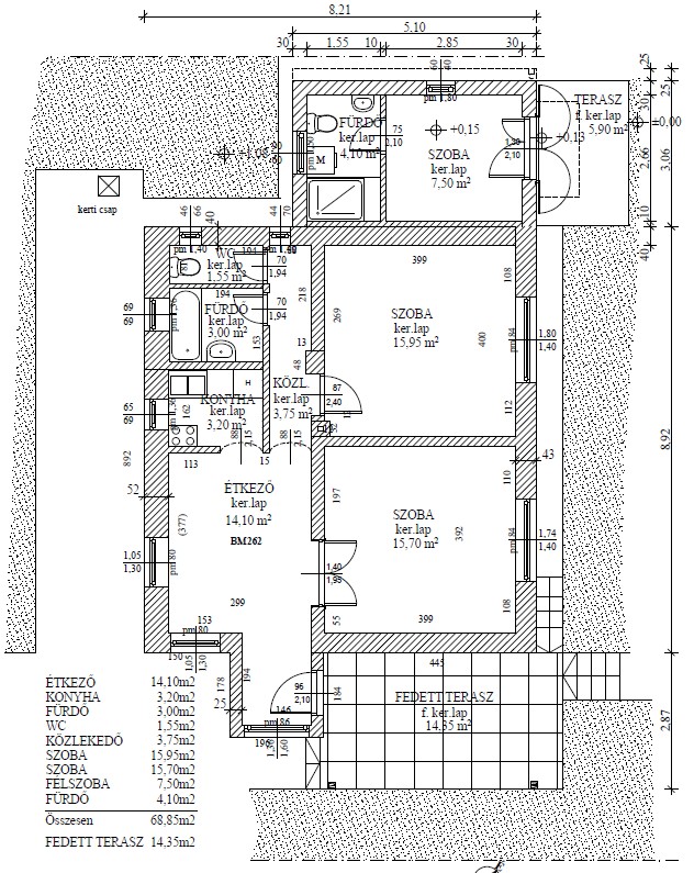
Bruttó 105 nm, nettó 69 nm: étkező (14,1m2), konyha (3,2m2), két 15,8m2-es szoba, egy fürdő (3m2), wc (1,6m2), közlekedő 3,75 m2 a bejáratnál pedig egy 14,35m2-es fedett terasz, a külön bejáratos lakrészben fürdő (4,10m2), egy 7,5m2-es szoba, előtte 5,9 m2-es terasz.

A konyha, étkező és közlekedő közötti falak bontásával egy közel 20 nm-es konyha-nappali alakítható ki.

Bővíthetőség:
A telek beépíthetősége 20%-os, ez alapján a jelenlegi 117 nm alapterület kis mértékben, maximum 122 nm-ig bővíthető. Az épületmagasság legnagyobb mértéke az övezetben 5 m, ez tetőtér ráépítést megenged. 

Kert (610 nm):
Enyhén lejtős, füves terület szép előkerttel és nagyobb, intim hátsó kerttel, gyümölcsfákkal (cseresznye, mandula, sárgabarack, füge, szilva), kerti csap használható locsolásra. A kertben található még egy alápincézett 12m2-es tégla szerkezetű tároló, ahova a villany van bevezetve.

Állapot:
Statikailag jó állapotú a ház, 1954-ben épült, de 1974-ben a szerkezeti falakon kívül teljesen átépítették, a tulajdonos építész, az épület szerkezetileg stabil. Feltöltésre épült, vizesedés nincs, a hátsó terasznál a végigfutó drain elvezeti a kert felé a vizet. Kb. 20 éve teljes tetőcserére került sor.

Részletek:
közművek: víz, villany, csatorna ingatlanon belül, gáz az utcában 
építőanyag: vegyes (tégla, kő, ytong 50-38-25-30 cm vastagságú határolófalak)
tető: a főépületen kb. 20 éves Tondach cserép, a hozzáépített kis részen bitumenes zsindelyfedés dupla hőszigeteléssel
födém: fa 
fűtés: hűtő-fűtő klíma, a két szoba között kémény van, kályha behelyezhető
nyílászárók: a főépületben fa, a kis lakrészen műanyag ablakok, hőszigetelt bejárati ajtó, fa zsalugáter
padlóburkolat: járólap, kb. 20 éves, megkímélt állapotú
internet és kábeltévé hálózat: van
parkolás: a ház előtt, de a kertben is lehetséges
környék: strand, belváros, vasútállomás távolsága 1-1,5 km, buszmegálló pár percre. Bevásárlási lehetőség jelenleg a Penny van legközelebb, kb. 1,5 km, de a folyamatban lévő fejlesztéssel a jelenlegi sportpálya helyén kereskedelmi egységek is lesznek, ez a partszakasz gyalog egy kellemes, 10 perces sétával könnyedén elérhető.
 

 

Megosztás:

Parameterek:

Építési telek
Kábeltv
Központ 2 km-en belül
Strand 2 km-en belül
Terasz

Referens: